« terug naar overzicht

Unieke woning direct a/h water!

[verkocht]

Deze luxe, nieuw te bouwen, vakantiewoning zal voorjaar 2025 worden geplaatst op een mooi en volledig nieuw ingerichte perceel aan de brede vaart op Waterzicht 43. Zolang de woning nog niet in het productieproces is opgenomen kunnen er nog aanpassingen worden uitgevoerd.

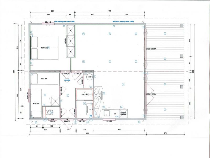
 Kamer: De kamer wordt voorzien van airconditioning en is ruim van opzet met aan de voorzijde twee brede glaspartijen met een schuifpui welke direct toegang bied tot de overdekte aangebouwde veranda. Aan de zijkant bevind zich nog grote glaspartij met schuifpui welke direct toegang verleend aan het royale terras naast de woning.

Keuken: De Keuken is in hoekopstelling en voorzien van alle gemakken, zoals een combi magnetron/oven, een geintregeerde vaatwasser en een koelkast.

Slaapkamers: De wonig heeft  2 slaapkamers, de hoofdslaapkamer is echt ruim van opzet en is voorzien van een twee persoonsbed van 180 cm breed en een ruime kastenwand met schuifdeuren. De tweede slaapkamer heeft 2 eenpersoonsbedden van 80 x 200 cm en een ruime kleding kast. Er is overigens voldoende ruimte om de bedden te vervangen voor stapelbedden. 

Badkamer: De badkamer heeft een ruime inloopdouche en badmeubel met spiegel.

Toilet: Het toilet bevind zich in een aparte ruimte en is voorzien van een vrijhangend toilet met inbouwreservoir. 

Veranda: De Veranda bevind zich over de gehele breedte van de woning en is 3.00 meter diep. Aan aan de voorzijde zijn stoere zware eiken balken geplaatst. 

Algemeen: De gehele woning wordt voorzien van vloerverwarming en in de huiskamer zal een airco worden geplaatst. In alle kamers zijn er diverse ramen uitgevoerd met ventilatie stroken. 

Tuinhuisje: het tuinhuisje wordt aan de rijbaanzijde naast de woning geplaatst en is vervanaardigd van hetzelfde onderhoudvrije materiaal als de woning.Hier is ruimte voor de wasmachine/droger, een vrieskast en de fietsen.

Perceel: Het perceel wordt geheel nieuw ingericht een aan de waterzijde voorzien van nieuwe beschoeiing en een mooie brede vlonder waar je prima een lounge set en ligstoelen kunt plaatsen. Naast het chalet word het perceel voorzien van luxe keramiektegels, de ruimte hier is uitermakte geschikt voor de buitenkeuken en eettafel. verder word het perceel voorzien van diverse aangeplante onderhouds arme borders. Het perceel wordt omheind door luxe schuttingen geplaats op betonnen palen.

 P.S. De woningen zijn puur voor recreatief gebruik, bewoning is niet toegestaan!

 

  • Bouwjaar: 2025
  • Lengte: 11.50 meter
  • Breedte: 6.60 meter
  • Standplaats: Waterzicht 42
  • huur standplaats: € 5.450,00

.

Vraag hier meer informatie aan »